Ref:
Busco:
Tipo:
En:
Zona:
Habitaciones:
Superficie:
Características:
Precio:

Oficina en zona Alfahuir (ref.2558)

Oficina en alquiler en Valencia (Rascanya)

2.760 €/mes
ref. 2558
230 m2 construidos
 
 Baños 2
 Calefacción Aire

Estado Muy bueno
Ascensor
Aire acondicionado
Zonas comunes
Adaptado
Calificación Energética En trámite
Luz
Agua
Sistema antiincendios
Vigilancia
Conserje
Vigilancia accesos
Acceso discapacitados

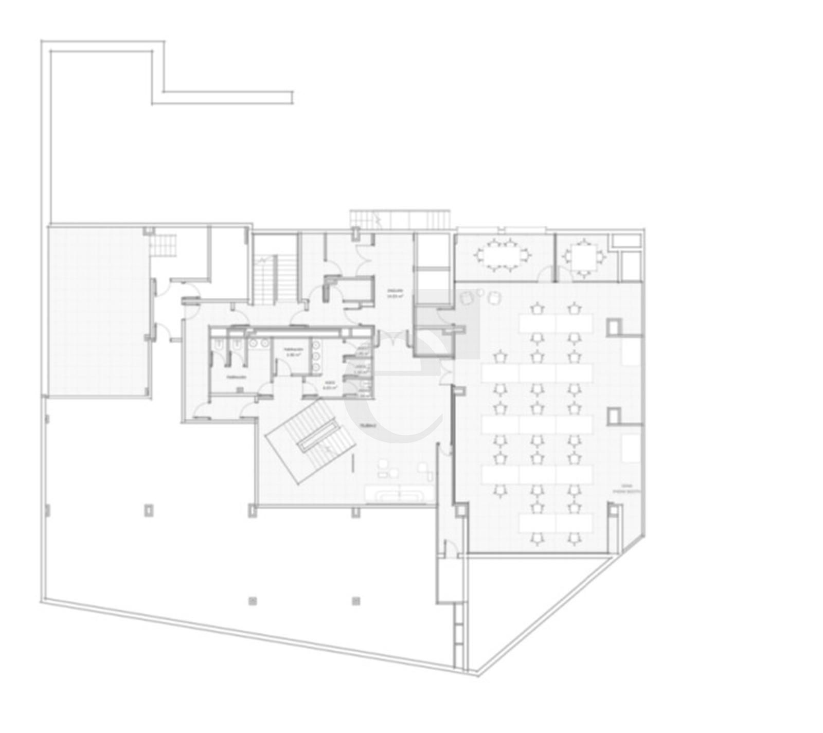
En edificio exclusivo de oficinas. Oficina en semisótano de nueva construcción ubicada dentro de un espacio del edificio antes destinado a auditorio.  La oficina se distribuye en un hall de entrada distribuidor, varios despachos y una amplia sala de reuniones.

Las fotos corresponden a zonas comunes del edificio y render del proyecto en desarrollo, ya que las oficinas están en proceso de reforma. El plano corresponde al proyecto de esta oficina.

El edificio cuenta con conserje, videovigilancia 24 horas, y dos ascensores. Además existen plazas de garaje y trasteros opcionales en el alquiler, precio a consultar y según disponibilidad.


-Falso techo tipo Armstrong

-Suelo técnico 

-Sistema frío/calor mediante equipos autónomos

-Instalación detección y contraincendios

-Aseos comunes en cada planta

Disponibilidad a coordinar

En el precio de renta no se incluyen los gastos de comunidad, que son por cuenta del inquilino (3,50 €/m²).

Si desea más información sobre esta propiedad, por favor, rellene el cuestionario:

Nosotros

ECOM consultores nació en el año 2003 con vocación de ser una consultora de referencia del mercado valenciano, especializándose en el asesoramiento e intermediación en transacciones inmobiliarias.

Dónde estamos

Dirección: Calle Colón 9, 1º-1ª
46004 Valencia

Móvil: 668 511 511

Teléfono: 96 339 12 98

GPS: 39°28'08.5"N
0°22'34.1"W