info@ecomconsultores.com
668 511 511
call us
668 511 511
Toggle navigation
Offices
Offices for rent
Offices for sale
Premises
Locals for rent
Locals for sale
Industrial
Industrial Ships for rent
Industrial Ships for sale
Plots for rent
Plor for buy
Residential
Apartments for rent
Apartments for sale
Garages for rent
Garages for buy
Buildings
Buildings for rent
Buildings for sale
Investment
Offices for sale
Locals for sale
Plots
investment
News
Contact
Ref.:
Search:
Buy
Rent
Property Type:
Penthouses
Flats
Houses
Detached villa
Semi detached villas
Comercial Premises
Offices
Garages
Industrial Warehouses
Plots
Singulars Buildings
In:
Castellón
Benicàssim
Borriol
Burriana
Valencia
Alboraya
Alcasser
Alfafar
Almoines
Benifaió
Canet D'En Berenguer
La Font de la Figuera
Llíria
Moncada
Museros
Paiporta
Picanya
Rocafort
Sagunt/Sagunto
San Antonio De Benagéber
Siete Aguas
Torrent
Valencia
Xàtiva
Location:
Rooms:
Choose rooms
1 or more
2 or more
3 or more
4 or more
5 or more
Surface:
Features:
Furnished
Lift
Heating
Fenced
Price:
€
Search
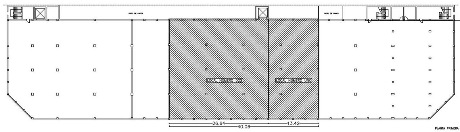
Singular Building for sale in Valencia (valencia)
(ref.2535)
Share on
WhatsApp
Facebook
X
LinkedIn
Email
Copiar URL
Go back
Next
Prev.
1,650,000 €
ref. 2535
1,132 m
2
constructed area
Bathrooms
1
Energy Rating
In process
Office for sale in Valencia, with 1 and132 m
2
.
For more information about this property, please fill out the form:
Full name *
e-mail *
Telephone
Message *
I have read and accept the legal conditions and privacy policy.
Send
About us
ECOM consultants was born in 2003 with the vocation of being a reference consultant of the Valencian market, specializing in advising and intermediation in real estate transactions.esoramiento e intermediación en transacciones inmobiliarias.
Find us
Address:
Calle Colón 9, 1º-1ª
46004 Valencia
Mobilie
668 511 511
Telephone:
96 339 12 98
GPS:
39.46810
-0.37412
Featured links:
Contact
Name*
e-mail*
Message*
I have read and accept the legal conditions and privacy policy.
Send
© 2026 ECOM TRANSACCIONES |
Legal advice
|
Data protection
|
Cookies
|
Creado con Mobilia