Ref.:
Search:
Property Type:
In:
Location:
Rooms:
Surface:
Features:
Price:

Ship for sale in mossén cobos street (ref.2540)

Office for sale and rent in Valencia (Benimamet)

790,000 € 6,000 €/month
ref. 2540
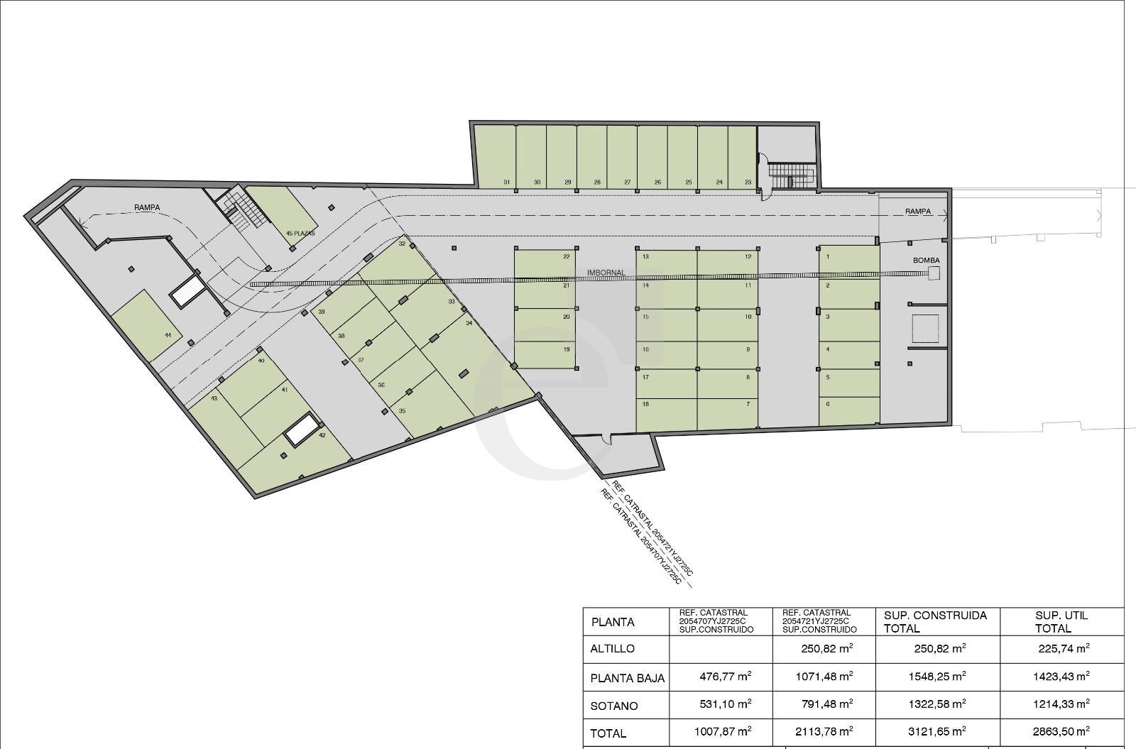
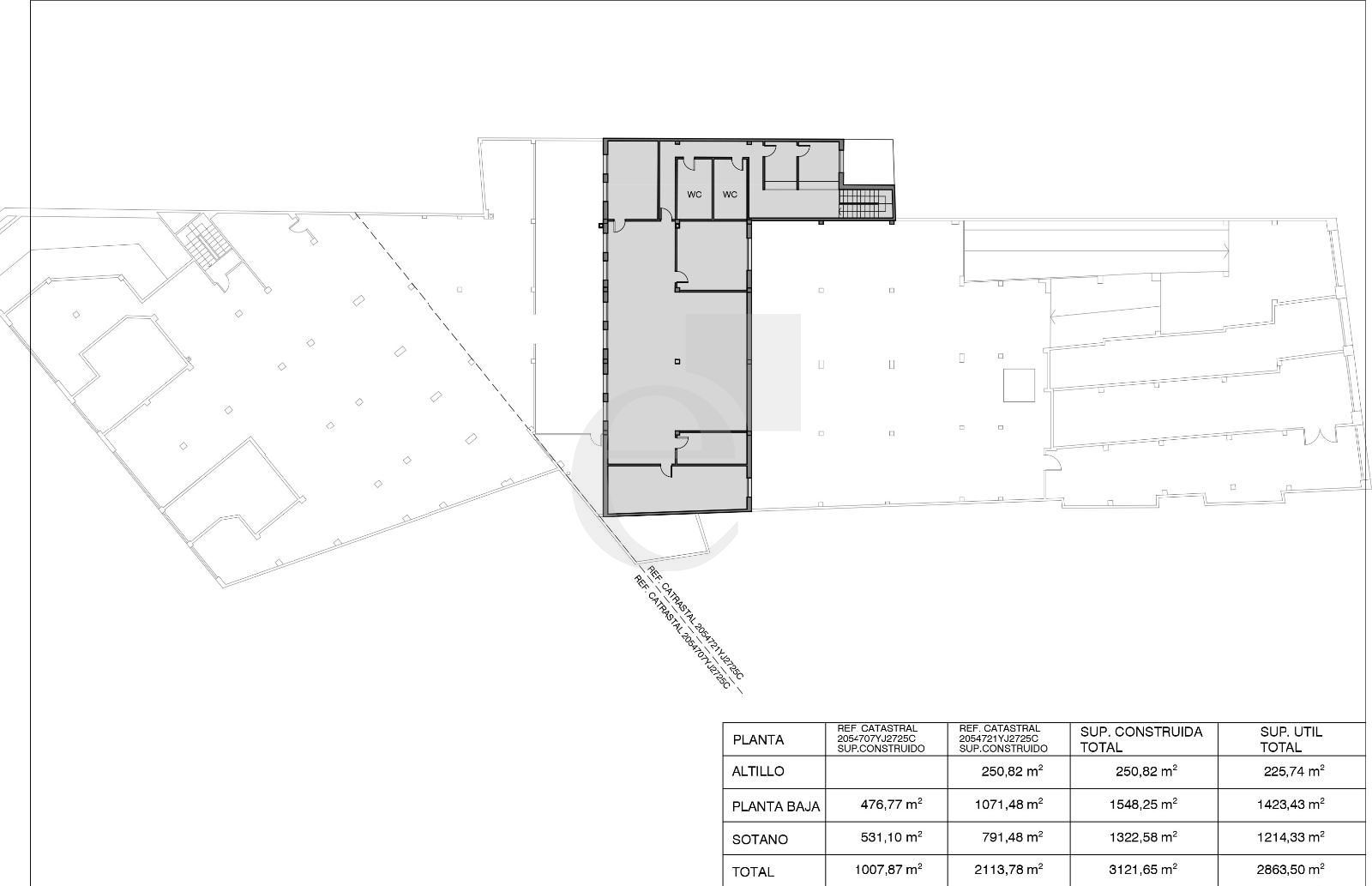
3,121 m2 constructed area
 

Energy Rating In process

Commercial premises available for sale or rent of 3,121 m2, distributed between ground floor and offices, plus a parking plant with capacity for 45 parking spaces, plus storage rooms and motorcycle parking spaces.

With access to two streets, allows the use in its entirety or by dividing into 5 or 6 independent commercial premises plus parking.

Located within urban core, with proximity to major roads and Valencia.

It is located in Benimamet and with access to calle dels Fusters and Mossen Cobos, a few steps away

of the City Council and the Parish of San Vicente Mártir

It has 7 street access blinds (3 to C / Párroco Cobos and 4 to C / Carpinteros)

Diaphanous space of 3.121,65m2 of gross area (2,863,50m2 useful) distributed in 3

plants.


Basement: 1,322.58m2 built (1,214.33 useful). Access ramp shot from the two streets. Capacity for 45 parking spaces, places for motorcycles and storage rooms. Communicated with the ground floor by two stair accesses.


Ground floor: 1,548,25m2 built (1,423.43m2 useful). Diaphanous space with an important height (luminosity) of ceiling in the center of the plant. Includes space prepared for forklifts that connects the ground floor and basement.


Mezzanine / Offices: 250,82m2 (225,74 utensils) diaphanous with lots of light and ceiling height.

The address of the property is approximate.

For more information about this property, please fill out the form:

About us

ECOM consultants was born in 2003 with the vocation of being a reference consultant of the Valencian market, specializing in advising and intermediation in real estate transactions.esoramiento e intermediación en transacciones inmobiliarias.

Find us

Address: Calle Colón 9, 1º-1ª
46004 Valencia

Mobilie 668 511 511

Telephone: 96 339 12 98

GPS: 39.46810
-0.37412